ul. Andrzeja Frycza Modrzewskiego 2/5

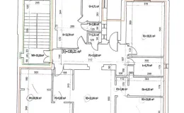
Lokal mieszkalny położony jest na trzecim piętrze budynku i składa się z czterech pokoi, trzech przedpokoi, kuchni, łazienki, wc, spiżarki, garderoby, pomieszczenia gospodarczego.  Powierzchnia użytkowa lokalu wynosi 130,21 m2. Lokal stanowi pustostan, jest wolny od obciążeń i nie jest przedmiotem zobowiązań.

 

Budynek, w którym znajduje się lokal wybudowany został w 1927, posiada pięć kondygnacji nadziemnych i jest całkowicie podpiwniczony. Budynek posiada cechy obiektu zabytkowego wpisany jest do gminnej ewidencji zabytków, figuruje w Studium historyczno-urbanistycznym Bielska oraz jest chroniony zapisami miejscowego planu zagospodarowania przestrzennego przyjętego uchwałą Nr XXXI/587/2017 Rady Miejskiej w Bielsku-Białej z dnia 20.06.2017 r. Remont lokalu należy przeprowadzić w uzgodnieniu z konserwatorem zabytków.

 

Nieruchomość położona jest w terenie, dla którego obowiązuje miejscowy plan zagospodarowania przestrzennego przyjęty uchwałą Nr XXXI/587/2017 Rady Miejskiej w Bielsku-Białej z dnia 20 czerwca 2017 r. Zgodnie z ww. planem nieruchomość położona jest w obszarze jednostki: "135_UMW-15” – podstawowe przeznaczenie – zabudowa usługowo-mieszkaniowa śródmiejska, w tym: zabudowa usług centrotwórczych, zabudowa mieszkaniowa wielorodzinna.

Sprzedaż zwolniona jest z podatku VAT na podstawie art. 43 ust.1 pkt 10 ustawy o podatku od towarów i usług.

Ofertę należy złożyć do 7 maja 2025 r. Wadium należy wpłacić nie później niż do 7 maja 2025 r. przelewem na konto. Ogłoszenie o przetargu dostępne jest w Biuletynie Informacji Publicznej, w zakładce sprzedaż nieruchomości.

Najważniejsze informacje

Adres: ul. Andrzeja Frycza Modrzewskiego 2/5
Wysokość wadium / zaliczki: 57 000,00 zł
Obręb: Dolne Przedmieście 56
Status oferty: Przetarg ogłoszony
Własność: Gmina Bielsko-Biała
Powierzchnia działki: 191m²
Numer działki: 133/1
Cena: 576 060,00 zł
Data przetargu / rokowań: 13.05.2025 r.
Forma przetargu: II przetarg pisemny nieograniczony

Plan zagospodarowania/Studium

Lokalizacja

Galeria zdjęć